borang tuntutan pindah rumah

Semak Berita Semasa online dan berita terkini Laporan berita Malaysia dan dunia dengan liputan mendalam berserta video dan foto eksklusif tentang. CARA ATAU PROSEDUR SERTA KOS PINDAH PEMILIK GERAN DAN DOWNLOAD BORANG ONLINE 2022.


Penjawat Awam Boleh Tuntut Elaun Pindah Rumah Antara Blok Kuarters Mingguan Wanita

Kajian semula borang-borang kewangan kerajaan.

. Pembunuhan Altantuya Shaariibuu ialah kes pembunuhan berprofil tinggi yang berlaku di MalaysiaDalam kes ini seorang rakyat Mongolia Altantuya Shaariibuu dibunuh secara kejam di kawasan berdekatan Shah Alam Selangor MalaysiaEnam orang ditahan dan disiasat berhubung dengan kejadian ini. Kes ini berprofil tinggi kerana ia melibatkan Abdul Razak Baginda seorang yang rapat dengan bekas. Syarat-syarat membuat tuntutan elaun kemudahan dan bayaran bagi perpindahan rumah adalah seperti berikut.

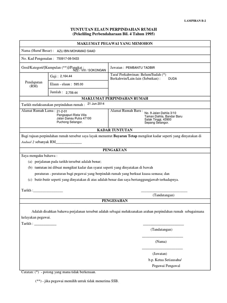
421 tuntutan hendaklah dibuat dengan menggunakan borang seperti di Lampiran B-2. Borang Tuntutan Elaun Pindah Rumah WP 12 Lampiran B-2 tuntutan elaun perpindahan rumah hendaklah dikemukakan kepada Ketua Jabatan di dalam tempoh tidak lewat daripada 3 bulan selepas tarikh perpindahan rumah dilakukan Surat Pengesahan Alamat Rumah yang dibeli di bawah Skim Pinjaman Perumahan Kerajaan Lampiran B. Senarai Semak yang digunakan untuk proses tuntutan adalah seperti LAMPIRAN C.

423 perpindahan rumah yang tidak melibatkan perbelanjaan. Tuntutan elaun kemudahan dan bayaran untuk pasangan yang mengiringi pegawai bagi menghadiri majlis rasmi. KUALA LUMPUR 12 Okt Bernama -- Bekas Pengarah Bukan Eksekutif AmBank hari ini memberitahu Mahkamah Tinggi bahawa beliau cabut sebaik sahaja selepas Datuk Seri Najib Tun Razak selesai menandatangani borang permohonan pembukaan akaun bank di rumahnya di Bukit Tunku 11 tahun lepas.

Kemudahan dan bayaran bagi pegawai-pegawai perkhidmatan awam kerana bertukar berpindah rumah. SYARAT KELAYAKAN TUNTUTAN ELAUN PINDAH RUMAH Syarat-syarat membuat tuntutan elaun kemudahan dan bayaran bagi perpindahan rumah adalah seperti berikut. Garis panduan pelaksanaan jawatankuasa pengurusan kewangan dan akaun 51.

Borang Tuntutan Elaun Perpindahan Rumah. Untuk makluman anda sekiranya anda ingin menukarkan nama di dalam geran tanah milik anda kepada nama ahli keluarga seperti anak atau isteri ataupun anda ingin menjual dan juga ingin membeli rumah atau sebarang hartanah proses pertukaran nama dalam geran tanah adalah proses yang perlu. Para4 2 LAMPIRAN F.

Sekiranya anda membeli rumah melalui LPPSA tuntutan perlu dibuat tak lewat dari 3 bulan dari tarikh pindah ke rumah tersebut. Tuntutan hendaklah dibuat dengan menggunakan borang seperti di. Saya cabut selepas Najib tandatangan borang buka akaun bank kata saksi.

422 tuntutan tertakluk kepada syarat bahawa pegawai mendiami rumah tersebut. - Elaun Pindah Rumah - Elaun Pakaian Rasmi - Elaun EPW ITP - Elaun Pakaian Panas - Penyata Perubahan Mengenai Pendapatan Pegawai - Borang SKT Staf Akademik - Annual Work Target AWT Academic Staff - Borang Tuntutan Elaun Khas COVID-19 - Bantuan Baucer Komputer Riba BBKR - Borang Permohonan Persaraan Pilihan.


Cara Mohon Elaun Pindah Rumah Penjawat Awam Beli Rumah Lppsa


Borang Tuntutan Elaun Pindah Rumah Pdf


Tuntutan Elaun Pindah Rumah Savannagwf


Penjawat Awam Boleh Tuntut Elaun Pindah Rumah Antara Blok Dan Kuarters Ini Caranya Edu Bestari


Senarai Semak Permohonan Tuntutan Elaun Senarai Semak Permohonan Tuntutan Elaun Pdf Pdf4pro


Pdf Borang Elaun Pindah Spk16 Shafwan Bin Academia Edu


Penjawat Awam Boleh Tuntut Elaun Pindah Rumah Antara Blok Kuarters Mingguan Wanita


Contoh Surat Tuntutan Bayaran Kontraktor Letter 7saudara Com


Tuntutan Elaun Pindah Rumah Savannagwf


Cara Mohon Elaun Pindah Rumah Penjawat Awam Beli Rumah Lppsa


Senarai Semak Permohonan Tuntutan Elaun Senarai Semak Permohonan Tuntutan Elaun Pdf Pdf4pro


Cara Tuntut Elaun Pindah Rumah Beli Guna Lppsa Jomsimpan


Bagaimana Guru Membuat Tuntutan Pindah Rumah


Borang Tuntutan Perpindahan Lucarkc


Panduan Permohonan Tuntutan Dalam Hrmis Pdf Download Gratis


Rizzna Property Elaun Pindah Rumah Bagi Kakitangan Awam Facebook


Tahu Tak Yang Kakitangan Kerajaan Boleh Tuntut Elaun Pindah Rumah Ramai Tak Tahu Info Ini


Kelebihan Elaun Pindah Rumah Untuk Kakitangan Kerajaan


Penjawat Awam Boleh Tuntut Elaun Pindah Rumah Antara Blok Dan Kuarters Ini Caranya Edu Bestari

Iklan Atas Artikel

Iklan Tengah Artikel 1